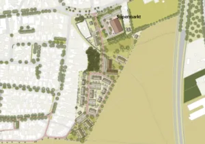
Inwoners van Milheeze moeten al sinds 2022 voor hun boodschappen buiten hun eigen dorp op zoek naar een supermarkt, maar daar komt snel verandering in als het aan het college van gemeente Gemert-Bakel ligt. Er moet een nieuwe woonwijk worden gebouwd aan de zuidoostkant van Milheeze met ook een eigen buurtsuper.
Volgens het plan komen er 87 woningen te staan voor starters, jonge gezinnen en senioren. De nieuwe buurt wordt volgens B&W van Gemert-Bakel groen en dorps opgezet. “De groei naar 35.000 inwoners vraagt om meer dan alleen woningen. We bouwen aan een dorp waar mensen prettig kunnen wonen met voorzieningen die daarbij horen. Samen met de ontwikkelaar Keizersberg Vastgoed B.V. versterken we de leefbaarheid en dragen we bij aan een vitaal Milheeze, ” zegt wethouder Hanneke Coppens.
Burgemeester en wethouders zeggen dat de nieuwe wijk wordt aangelegd met aandacht voor de geschiedenis van het gebied: “Er worden doorkijken richting het akkergebied gerealiseerd, de zogeheten steilrand wordt zichtbaar gemaakt en delen van oude routes worden in het gebied teruggebracht. Op deze manier blijft de omgeving herkenbaar en sluit het aan bij het karakter van Milheeze.”
Ook de terugkomst van een supermarkt aan de Milheesestraat is volgens het college een belangrijke stap: “Met de nieuwe winkel kunnen inwoners straks weer in het dorp terecht voor hun dagelijkse boodschappen. De supermarkt wordt ook een plek om elkaar te ontmoeten en draagt bij aan de leefbaarheid van het dorp.”
Voor de ontwikkeling van de nieuwe wijk heeft het college van gemeente Gemert-Bakel inmiddels het stedenbouwkundigplan en het ontwerp van het omgevingsplan vastgesteld. Sinds afgelopen dinsdag ligt het ontwerpplan ter inzage en kunnen mensen met eventuele bezwaren zes weken lang een zienswijze indienen.
Foto: gemeente Gemert-Bakel







